
(来源:盈建科)
概述
]article_adlist-->城市更新中,工业厂房的改造加固是不可或缺的一部分。目前,YJK已支持钢框架结构、三维门式钢架(简称门刚)与二维门刚的加固设计。那么,今天为大家分享四个关于钢结构加固设计中遇到的常见问题。
1、名义应力为0
依据《钢结构加固设计标准》GB 51367-2019第6.1.6条,负荷状态下,钢构件的焊接加固,应根据原构件的使用条件,校核其最大名义应力б0max是否符合表6.1.6应力比限值的规定。若不符合规定时,不得在负荷状态下进行焊接加固。

软件可以通过计算参数设置,读取加固前模型的名义应力。

但在查看名义应力结果时,有不少用户遇到名义应力为0的问题。如下图钢梁在钢结构加固结果中查看名义应力简图,发现其名义应力为0。

打开构件信息,名义应力文本结果同样为0。

造成名义应力结果为0的主要原因是,加固后构件的截面形心会发生改变,在链接未加固模型读取名义应力时,节点坐标的精度超过了软件的默认值。此时,就无法读取到未加固模型的名义应力,最终输出为0。
遇到这种情况,可以在计算参数的高级选项中,将“包络设计时节点坐标判断精度”改大,如将默认值100改成500,重新进行加固计算。

再次查看名义应力,简图与文本均输出了钢梁的名义应力结果。

2、加固强度修正系数低于表格限值
下图中的钢梁加固计算完成后,查看构件信息,其中第4截面的强度修正系数ηm=0.76。

而查询《钢结构加固设计标准》表6.2.1,受弯构件强度修正系数ηm按表格中取值的最低值为0.8。那么,0.76是如何得出的呢?

根据《钢结构加固设计标准》6.2.1条,受弯构件加固强度修正系数,对于双侧加固,按表6.2.1取值;对于单侧加固,按表6.2.1系数的0.9倍取值。

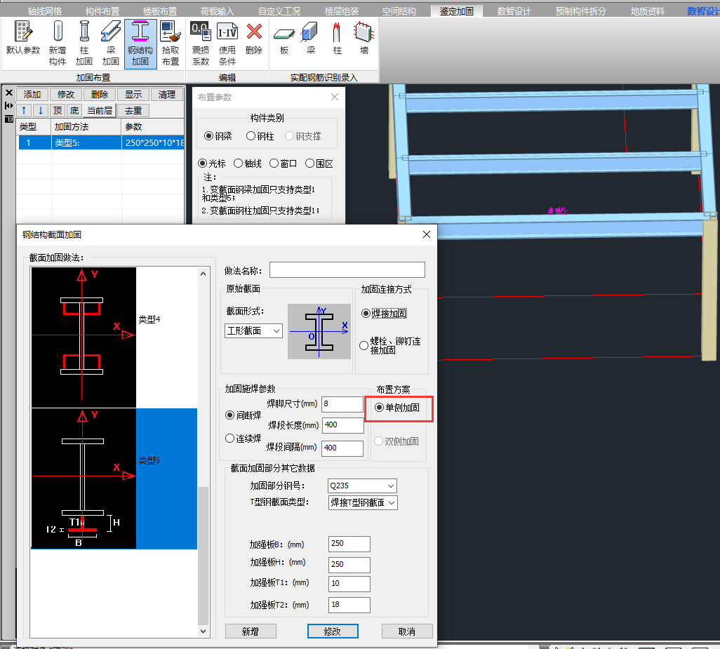
由加固做法布置方案可见,该梁是加固类型5,单侧加固。

由上,现手核强度修正系数0.76。

由表6.2.1,根据б0max/f判断强度修正系数ηm。由构件信息,б0max=56,f=215,56/215=0.26,按表应取ηm=0.85。该梁为单侧加固,则ηm=0.9x0.85=0.76与软件输出的一致。因此,钢梁单侧加固时强度修正系数ηm是有可能低于表格限值的。
注:构件信息输出的б0max/fy是判断名义应力是否适合焊接加固的,而强度修正系数的判断条件是б0max/f,两者是不相同的。
3、加固后应力比反而变大
有用户反馈,钢梁布置了加固做法并进行加固计算后,查看加固后的应力比反而比未布置加固时的应力比要大。
如下图,此门刚梁未布置加固做法的初始应力比为0.76。

查看其构件信息,正应力=163.10<限值=215.00。

现对该钢梁布置加固类型5,勾选钢结构加固参数,进行加固计算。

计算完成后,查看加固后的应力比=0.90。

进一步查看其构件信息,正应力=148.36<限值=164.4。

由此可见,加固后的应力比0.9确实是>初始应力比0.76的。
经两种情况的构件信息数据对比,可发现有两点原因:
(1)加固后的内力Mx=149.45>初始内力Mx=143.24,这是由于加固后的钢梁截面属性发生了变化,其刚度大小也会改变,最终影响的是内力不同。
(2)加固后的承载力=164.47<初始承载力=215,这是由于加固后的钢梁强度按《钢结构加固设计标准》进行了折减。
查看构件信息中的名义应力输出内容,可看到该钢梁的强度修正系数为0.765。0.765x215=164.47。

需注意的是,该梁存在轴力的作用,强度修正系数应按《钢结构加固设计标准》表6.4.1的压弯构件取值。

因此,钢梁布置完加固做法后的应力比有可能高于未加固时的应力比。
针对这种情况,可适当增大加固尺寸以降低应力的数值,从而减小应力比。如对该梁的加固尺寸由100、100、6、6改为150、150、12、12,重新进行加固计算。

此时,加固后的应力比0.74<初始应力比0.76了。

查看构件信息,正应力=122.41<第一次加固的正应力=148.36。可见,加固尺寸变大后,其应力数值明显的降低了,最终应力比是要小于初始应力比的。

4、加固构件强度取值规则
该用户将加固板材的钢号由345改为235,其他均未改变,最终软件输出的强度f由215变为205,这是什么原因?


依据《钢结构加固设计标准》6.2.1条,钢材的抗弯强度设计值,取截面中最低强度级别钢材的抗弯强度设计值。

软件对加固钢构件的强度设计值取值规则如下:
· 当母材与加固板材钢号相同时,软件取两者截面厚度较大值,按《钢结构设计标准》表4.4.1取值;
· 当母材与加固板材钢号不同时,软件取两者较低的钢号及较低钢号对应的截面厚度,按《钢结构设计标准》表4.4.1取值。

根据此规则,分析用户上述问题:
· 当母材为235,加固板材为345时,按母材的钢号及截面厚度判断,钢梁原截面为H396*199*7*10,厚度小于16,按《钢结构设计标准》表4.4.1取值为215。

· 当母材为235,加固板材为235时,按两者的较大截面厚度判断,钢梁原截面为H396*199*7*10,加固板材截面为H*B*T1*T2=300*300*16*30,较大厚度为加固板材的30,大于16,按《钢结构设计标准》表4.4.1取值为205。

总结
(1)加固后构件的截面形心会发生改变,可能会出现名义应力为0的情况,遇到这种情况,可以在计算参数的高级选项中,将“包络设计时节点坐标判断精度”适当增大。
(2)当钢梁单侧加固时,强度修正系数ηm有可能低于表格限值。
(3)钢梁布置完加固做法后的应力比有可能会比未加固时的应力比大。针对这种情况,可适当增大加固尺寸改大以降低应力的数值,从而减小应力比。
(4)软件对加固钢构件的强度设计值取值规则如下:
· 当母材与加固板材钢号相同时,软件取两者截面厚度较大值,按《钢结构设计标准》表4.4.1取值;
· 当母材与加固板材钢号不同时,软件取两者较低的钢号及较低钢号对应的截面厚度,按《钢结构设计标准》表4.4.1取值。
周刊 · 回顾· 技术周刊 | 梁柱节点核心区验算实例(四)
· 技术周刊 | 风机塔架混塔基础在盈建科软件(YJK-WTF)中应用的高频问题总结
· 技术周刊 | 楼板鉴定加固常见问题解析
· 技术周刊 | 基于Y-GAMA的河南某变电站项目结构选型与截面优化实践
]article_adlist-->· END · ]article_adlist-->网址:https://www.yjk.cn/服务热线:010-86489797
技术支持邮箱:support@yjk.cn
]article_adlist-->
]article_adlist-->
海量资讯、精准解读,尽在新浪财经APP
股票在线配资门户网提示:文章来自网络,不代表本站观点。